Details
Taylor Close, Tonbridge
OIEO £200,000
(Sold Subject To Contract)
Description
A modern top floor apartment situated close to Tonbridge high street and train station, a must view for first time buyers and investors!
DESCRIPTION
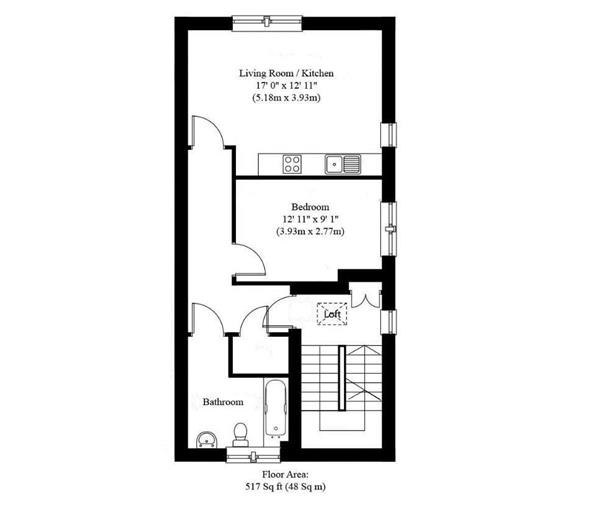
This modern apartment is situated on the 2nd floor and was built in 2014, it is only one of three apartments in the building. It comprises of a large bathroom, double bedroom and modern open plan kitchen/dining living space. The apartment benefits from wonderful views over the town as well as an abundance of natural light throughout.
Outside, communal grounds can be used and an allocated parking space is nearby.
LOCATION
Taylor Close is a quiet cul-de-sac situated on the sought-after south side of Tonbridge, within easy walking distance of the town centre. Tonbridge High Street offers a wide range of shops, cafés, restaurants and everyday amenities, with several well-regarded supermarkets also close by.
The area is particularly popular with families, benefitting from an excellent selection of primary and secondary schools, including highly regarded grammar and independent options. Tonbridge mainline station is easily accessible and provides fast, regular services to London Bridge, Charing Cross and Cannon Street, making it ideal for commuters. There are also local bus routes nearby and convenient road access via the A21, connecting to the M25 and wider motorway network.
For leisure, residents can enjoy the open green spaces of Tonbridge Park and the River Medway, along with nearby countryside walks and recreational facilities.
LEASE DETAILS
Service Charge: £1200 per annum
Ground Rent: £291 per annum
Lease Length: 112 years
Viewing
Please contact us on 01732 351323 if you wish to arrange a viewing appointment for this property, or require further information.
Energy Performance Certificate
Click here to view the Energy Efficiency Rating and Environmental Impact Rating for this property.
Disclaimer
Ibbett Mosely endeavour to maintain accurate depictions of properties in Virtual Tours, Floor Plans and descriptions, however, these are intended only as a guide and purchasers must satisfy themselves by personal inspection.
A modern top floor apartment situated close to Tonbridge high street and train station, a must view for first time buyers and investors!
DESCRIPTION
This modern apartment is situated on the 2nd floor and was built in 2014, it is only one of three apartments in the building. It comprises of a large bathroom, double bedroom and modern open plan kitchen/dining living space. The apartment benefits from wonderful views over the town as well as an abundance of natural light throughout.
Outside, communal grounds can be used and an allocated parking space is nearby.
LOCATION
Taylor Close is a quiet cul-de-sac situated on the sought-after south side of Tonbridge, within easy walking distance of the town centre. Tonbridge High Street offers a wide range of shops, cafés, restaurants and everyday amenities, with several well-regarded supermarkets also close by.
The area is particularly popular with families, benefitting from an excellent selection of primary and secondary schools, including highly regarded grammar and independent options. Tonbridge mainline station is easily accessible and provides fast, regular services to London Bridge, Charing Cross and Cannon Street, making it ideal for commuters. There are also local bus routes nearby and convenient road access via the A21, connecting to the M25 and wider motorway network.
For leisure, residents can enjoy the open green spaces of Tonbridge Park and the River Medway, along with nearby countryside walks and recreational facilities.
LEASE DETAILS
Service Charge: £1200 per annum
Ground Rent: £291 per annum
Lease Length: 112 years
Viewing
Please contact us on 01732 351323 if you wish to arrange a viewing appointment for this property, or require further information.
Energy Performance Certificate
Click here to view the Energy Efficiency Rating and Environmental Impact Rating for this property.
Disclaimer
Ibbett Mosely endeavour to maintain accurate depictions of properties in Virtual Tours, Floor Plans and descriptions, however, these are intended only as a guide and purchasers must satisfy themselves by personal inspection.
Features
- Modern Top Floor Apartment
- South Tonbridge Location
- Great Views
- Allocated Parking Space
- Large Bathroom
- Communal Gardens
- Near to High Street & Station
- EPC - C
- Council Tax - B
Share
Request aValuation
Find out how much your home is worth with a free valuation.

