Details
Crown Road, Shoreham, Sevenoaks
£475,000
Description
A CHARMING CHARACTER COTTAGE IN THE HEART OF THE VILLAGE - GUIDE PRICE £475,000
DESCRIPTION
We are delighted to be able to present this character cottage sitting in the very heart of the much favoured village of Shoreham. The owners have managed to retain many of the period features of this cottage with great attention to details. The accommodation is arranged over two floors with a comfortable Sitting Room on the ground floor which leads into a Dining Room. Kitchen and Bathroom. Both Bedrooms are arranged on the first floor. The rear garden provides a perfect setting for relaxing on the patio with an early glass of wine at the end of the day. The cottage benefits from a Summerhouse and far reaching views. For those needing to commute to London Shoreham Station is in easy walking distance with Otford Station a short drive away providing fast services to London on the London Bridge, Charing Cross Line. Internal viewing is highly recommended.
LOCATION
The village of Shoreham sits in the Darenth Valley between Eynsford and Otford in the North Downs, an area of outstanding natural beauty. It is very popular with walkers who enjoy the many footpaths and designated walks through the surrounding countryside. The village has a railway station with services to London on the Blackfriars/Victoria line and on to St Pancras. There is a school, post office/general store and two public houses. Once the home of artist Samual Palmer, Shoreham is a vibrant village with many societies and activities for all ages including the aircraft museum. Each year there are several summer events including the duck race and village fete. There are a number of highly regarded schools in the area both state and independent. Otford is just under 2 miles away with a wider range of shopping facilities, library doctors surgery and dentist. There are a number of boutique shops in the High Street with tea rooms and antique shops. The Parade has a range of useful shops including the Post Office, One Stop Shop and Lodge Cafe. The M25 motorway can be joined just to the west of Sevenoaks at Chevening.
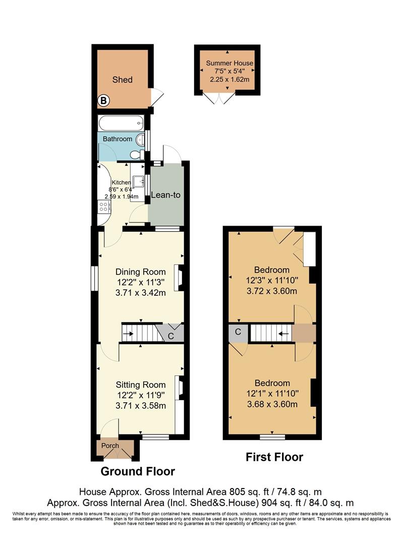
ENTRANCE PORCH
Through double doors leading into:
SITTING ROOM
Double glazed window to front. Feature fireplace with timber surround and open fire. Wall lights. Television point. Engineered oak flooring.
DINING ROOM
Window to rear. Small double glazed window to side. Staircase leading to first floor with under stairs cupboard. Engineered oak floor. Radiator enclosed in fretwork cabinet.
KITCHEN
Glazed door leading to Lean To. Range of floor and wall units with work surfaces over. Butler sink with mixer tap. Space for cooker with 4 ring gas hob. Space for fridge. Slate tiled floor.
FAMILY BATHROOM
Window to side. Suite comprising: panelled bath with shower attachment & curtain, wash hand basin and wc. Radiator enclosed in cabinet. Slate tiled floor.
LEAN TO
Glazed surround with door leading out to rear garden. Space and plumbing for washing machine.
FIRST FLOOR
BEDROOM
Double glazed window to front. Built in wardrobe.
BEDROOM
Double glazed floor to ceiling window/door opening out to flat roof. Built in wardrobe. Television point. Access to loft. Radiator.
OUTSIDE
REAR
Steps leading up to paved patio area with attractive flint wall to side. Summerhouse with glazed double doors. Perfect setting for outdoor entertaining with far reaching views towards the North Downs.
Viewing
Please contact us on 01959 522164 if you wish to arrange a viewing appointment for this property, or require further information.
Energy Performance Certificate
Click here to view the Energy Efficiency Rating and Environmental Impact Rating for this property.
Disclaimer
Ibbett Mosely endeavour to maintain accurate depictions of properties in Virtual Tours, Floor Plans and descriptions, however, these are intended only as a guide and purchasers must satisfy themselves by personal inspection.
A CHARMING CHARACTER COTTAGE IN THE HEART OF THE VILLAGE - GUIDE PRICE £475,000
DESCRIPTION
We are delighted to be able to present this character cottage sitting in the very heart of the much favoured village of Shoreham. The owners have managed to retain many of the period features of this cottage with great attention to details. The accommodation is arranged over two floors with a comfortable Sitting Room on the ground floor which leads into a Dining Room. Kitchen and Bathroom. Both Bedrooms are arranged on the first floor. The rear garden provides a perfect setting for relaxing on the patio with an early glass of wine at the end of the day. The cottage benefits from a Summerhouse and far reaching views. For those needing to commute to London Shoreham Station is in easy walking distance with Otford Station a short drive away providing fast services to London on the London Bridge, Charing Cross Line. Internal viewing is highly recommended.
LOCATION
The village of Shoreham sits in the Darenth Valley between Eynsford and Otford in the North Downs, an area of outstanding natural beauty. It is very popular with walkers who enjoy the many footpaths and designated walks through the surrounding countryside. The village has a railway station with services to London on the Blackfriars/Victoria line and on to St Pancras. There is a school, post office/general store and two public houses. Once the home of artist Samual Palmer, Shoreham is a vibrant village with many societies and activities for all ages including the aircraft museum. Each year there are several summer events including the duck race and village fete. There are a number of highly regarded schools in the area both state and independent. Otford is just under 2 miles away with a wider range of shopping facilities, library doctors surgery and dentist. There are a number of boutique shops in the High Street with tea rooms and antique shops. The Parade has a range of useful shops including the Post Office, One Stop Shop and Lodge Cafe. The M25 motorway can be joined just to the west of Sevenoaks at Chevening.
ENTRANCE PORCH
Through double doors leading into:
SITTING ROOM
Double glazed window to front. Feature fireplace with timber surround and open fire. Wall lights. Television point. Engineered oak flooring.
DINING ROOM
Window to rear. Small double glazed window to side. Staircase leading to first floor with under stairs cupboard. Engineered oak floor. Radiator enclosed in fretwork cabinet.
KITCHEN
Glazed door leading to Lean To. Range of floor and wall units with work surfaces over. Butler sink with mixer tap. Space for cooker with 4 ring gas hob. Space for fridge. Slate tiled floor.
FAMILY BATHROOM
Window to side. Suite comprising: panelled bath with shower attachment & curtain, wash hand basin and wc. Radiator enclosed in cabinet. Slate tiled floor.
LEAN TO
Glazed surround with door leading out to rear garden. Space and plumbing for washing machine.
FIRST FLOOR
BEDROOM
Double glazed window to front. Built in wardrobe.
BEDROOM
Double glazed floor to ceiling window/door opening out to flat roof. Built in wardrobe. Television point. Access to loft. Radiator.
OUTSIDE
REAR
Steps leading up to paved patio area with attractive flint wall to side. Summerhouse with glazed double doors. Perfect setting for outdoor entertaining with far reaching views towards the North Downs.
Viewing
Please contact us on 01959 522164 if you wish to arrange a viewing appointment for this property, or require further information.
Energy Performance Certificate
Click here to view the Energy Efficiency Rating and Environmental Impact Rating for this property.
Disclaimer
Ibbett Mosely endeavour to maintain accurate depictions of properties in Virtual Tours, Floor Plans and descriptions, however, these are intended only as a guide and purchasers must satisfy themselves by personal inspection.
Features
- 2 Bedrooms
- Sitting Room with Open Fire
- Dining Room
- Kitchen
- Family Bathroom
- Lean To
- Cottage Garden
- Walking Distance to Shoreham Station
Share
Request aValuation
Find out how much your home is worth with a free valuation.

