Details
Ridlands Grove, Limpsfield Chart, Nr Oxted
Guide price £1,000,000
(Sold Subject To Contract)
Description
Close to Limpsfield Common with its golf course and cricket ground and acres of National Trust woodland this spacious detached family home is available free of onward chain.Built in the nineteen seventies with pleasing brick and tile hung elevations under a tiled roof with the exception of the conservatory which was a later addition. The house is one of seven in a private residents maintained drive.
GUIDE PRICE £1,000,000 FREEHOLD
LOCATION
The hamlet of Limpsfield Chart is about three miles from Oxted, within the hamlet you will find the well regarded Carpenters Arms Pub, St Andrews Church and a village hall. Limpsfield Chart is surrounded by acres of National Trust land and Limpsfield Common with its nine hole golf course.
Oxted is the main centre for the area and has a wide selection of shops and supermarkets, a leisure centre with swimming pool, a cinema, a theater, a health centre and station to Croydon and London, these is also a station at Hurst Green.
There is a good choice of state and private schools for all ages in the surrounding villages and towns as well as sporting and recreational facilities.
M25 access from junctions 5 or 6.
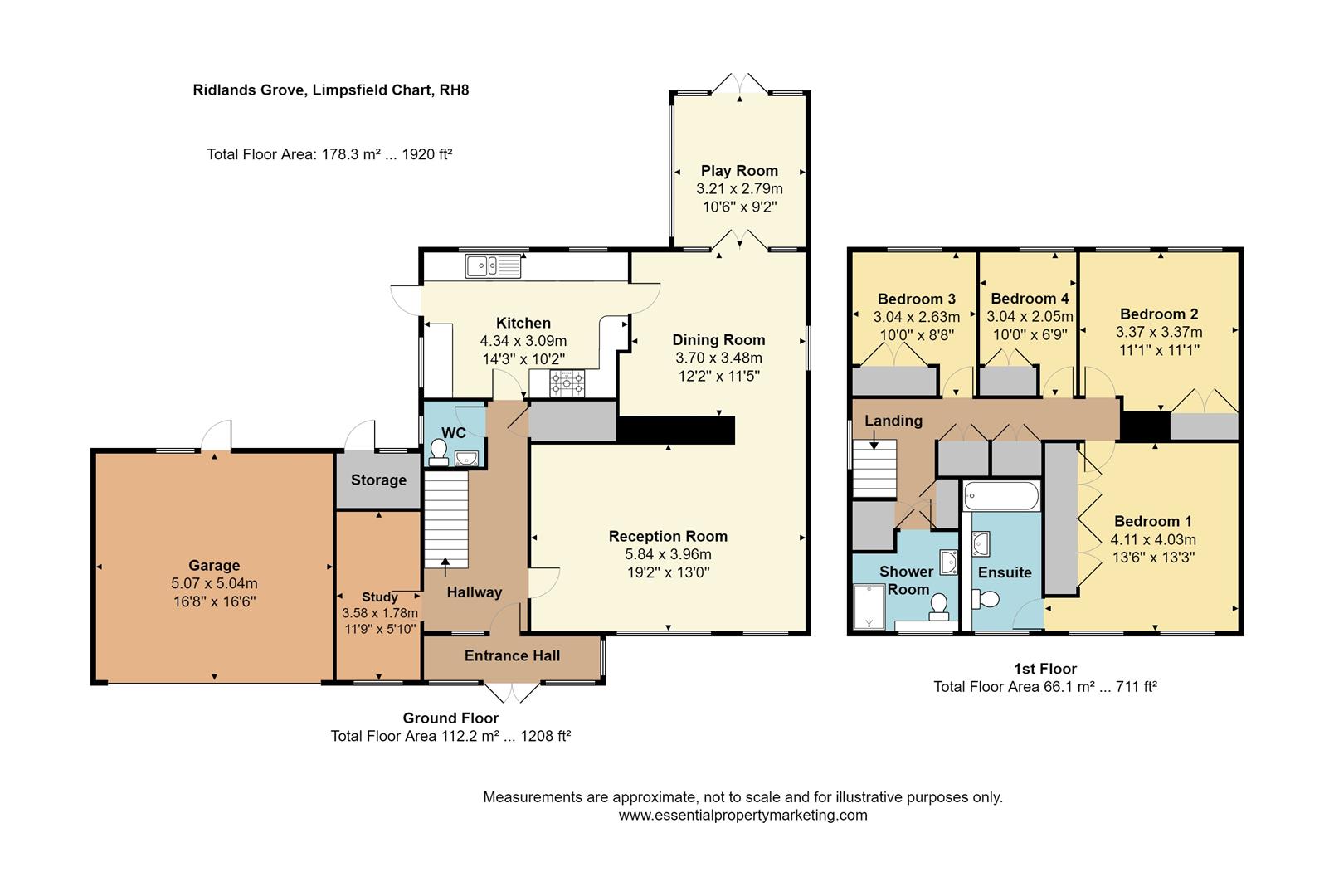
GROUND FLOOR
Double glazed double doors open to the enclosed entrance porch.
ENTRANCE PORCH
With double glazed windows and front door to the entrance hall.
ENTRANCE HALL
With radiator, large storage cupboard, Kahrs engineered Artisan Maple flooring and cupboard under the stairs.
CLOAKROOM
With w.c., hand basin, heated towel rail incorporating a radiator, part tiled walls, Kahrs engineered Artisan Maple flooring and double glazed window.
LIVING ROOM
With two radiators, fireplace recess (The chimney has been capped), recessed log store, double glazed windows with fitted shutters, Kahrs engineered Artisan Maple flooring and display recess, opening to the dining room.
DINING ROOM
With radiator, double glazed window, Kahrs engineered Artisan Maple flooring, door to the kitchen and double glazed double doors to the conservatory.
CONSERVATORY
With radiator, Kahrs engineered Artisan Maple flooring, double glazed windows and doors to the garden.
STUDY
With radiator, double glazed window with fitted shutters. Kahrs engineered Artisan Maple flooring.
KITCHEN
Fitted with a range of base and wall units with timber work surfaces. Classic range cooker with Smeg extractor over. Built in fridge, freezer and dishwasher. Integrated washing machine and tumble dryer, built in sink unit. Double glazed double aspect windows, part tiled walls and double glazed door to the garden.
FIRST FLOOR
LANDING
With a double glazed window to the side with fitted shutters. Hatch with fitted ladder to the loft space with gas boiler and mega flow supplementary water heater. Cupboard over the stairs, double linen cupboard with shelving, double wardrobe cupboard and wood flooring.
BEDROOM ONE
With two radiators, double glazed windows with fitted shutters, two double wardrobe cupboards and Kahrs engineered Artisan Maple flooring.
EN-SUITE BATHROOM
Fitted with an enclosed bath with mixer tap and shower attachment, w.c. and hand basin. Part tiled walls, ladder style heated towel rail, extractor fan and double glazed window.
BEDROOM TWO
With two radiators, double glazed windows with fitted shutters, double wardrobe cupboard and Kahrs engineered Artisan Maple flooring.
BEDROOM THREE
With radiator, double glazed window with fitted shutters, double wardrobe cupboard and Kahrs engineered Artisan Maple flooring.
BEDROOM FOUR
With radiator, double glazed window with fitted shutters, shelved cupboard and Kahrs engineered Artisan Maple flooring.
FAMILY BATHROOM
With shower cubicle, w.c. and hand basin with drawers and cupboards under. Ladder style heated towel rail, double glazed window, extractor fan and part tiled walls and tiled flooring.
OUTSIDE
GARAGE
With electric up and over door, light, power and door to the back garden. There is an outside store with light and power with external door.
There is parking for two cars in front of the garage, the kerb has been lowered to allow the parking area to be extended if required.
THE GARDEN
There is access either side of the house to the back garden, to the front and right of the house is a large area with perimeter hedges, lawns, trees and shrubs. The back garden is mainly lawn with a patio.
SERVICES
Mains gas, water, electricity and drainage are connect to the property.
COUNCIL TAX
The area is administered by Tandridge District Council and the property is in council tax band ''G''
NOTE
Ridlands Grove is a private drive maintained by the residents, there is an annual charge of circa £200.
DIRECTIONS
Leave Oxted on the A25 towards Westerham and Sevenoaks, continue straight on at the Limpsfield traffic lights and filter into the right lane. At the brow of the hill turn right on to the B269 Kent Hatch Road signposted to Crockham Hill and Edenbridge.
You will see the golf course on both sides of the road, after passing the golf course take the next road to the left into Ridlands Lane. Ridlands Grove will be found on the left.
Viewing
Please contact us on 01959 563265 if you wish to arrange a viewing appointment for this property, or require further information.
Energy Performance Certificate
Click here to view the Energy Efficiency Rating and Environmental Impact Rating for this property.
Disclaimer
Ibbett Mosely endeavour to maintain accurate depictions of properties in Virtual Tours, Floor Plans and descriptions, however, these are intended only as a guide and purchasers must satisfy themselves by personal inspection.
Close to Limpsfield Common with its golf course and cricket ground and acres of National Trust woodland this spacious detached family home is available free of onward chain.Built in the nineteen seventies with pleasing brick and tile hung elevations under a tiled roof with the exception of the conservatory which was a later addition. The house is one of seven in a private residents maintained drive.
GUIDE PRICE £1,000,000 FREEHOLD
LOCATION
The hamlet of Limpsfield Chart is about three miles from Oxted, within the hamlet you will find the well regarded Carpenters Arms Pub, St Andrews Church and a village hall. Limpsfield Chart is surrounded by acres of National Trust land and Limpsfield Common with its nine hole golf course.
Oxted is the main centre for the area and has a wide selection of shops and supermarkets, a leisure centre with swimming pool, a cinema, a theater, a health centre and station to Croydon and London, these is also a station at Hurst Green.
There is a good choice of state and private schools for all ages in the surrounding villages and towns as well as sporting and recreational facilities.
M25 access from junctions 5 or 6.
GROUND FLOOR
Double glazed double doors open to the enclosed entrance porch.
ENTRANCE PORCH
With double glazed windows and front door to the entrance hall.
ENTRANCE HALL
With radiator, large storage cupboard, Kahrs engineered Artisan Maple flooring and cupboard under the stairs.
CLOAKROOM
With w.c., hand basin, heated towel rail incorporating a radiator, part tiled walls, Kahrs engineered Artisan Maple flooring and double glazed window.
LIVING ROOM
With two radiators, fireplace recess (The chimney has been capped), recessed log store, double glazed windows with fitted shutters, Kahrs engineered Artisan Maple flooring and display recess, opening to the dining room.
DINING ROOM
With radiator, double glazed window, Kahrs engineered Artisan Maple flooring, door to the kitchen and double glazed double doors to the conservatory.
CONSERVATORY
With radiator, Kahrs engineered Artisan Maple flooring, double glazed windows and doors to the garden.
STUDY
With radiator, double glazed window with fitted shutters. Kahrs engineered Artisan Maple flooring.
KITCHEN
Fitted with a range of base and wall units with timber work surfaces. Classic range cooker with Smeg extractor over. Built in fridge, freezer and dishwasher. Integrated washing machine and tumble dryer, built in sink unit. Double glazed double aspect windows, part tiled walls and double glazed door to the garden.
FIRST FLOOR
LANDING
With a double glazed window to the side with fitted shutters. Hatch with fitted ladder to the loft space with gas boiler and mega flow supplementary water heater. Cupboard over the stairs, double linen cupboard with shelving, double wardrobe cupboard and wood flooring.
BEDROOM ONE
With two radiators, double glazed windows with fitted shutters, two double wardrobe cupboards and Kahrs engineered Artisan Maple flooring.
EN-SUITE BATHROOM
Fitted with an enclosed bath with mixer tap and shower attachment, w.c. and hand basin. Part tiled walls, ladder style heated towel rail, extractor fan and double glazed window.
BEDROOM TWO
With two radiators, double glazed windows with fitted shutters, double wardrobe cupboard and Kahrs engineered Artisan Maple flooring.
BEDROOM THREE
With radiator, double glazed window with fitted shutters, double wardrobe cupboard and Kahrs engineered Artisan Maple flooring.
BEDROOM FOUR
With radiator, double glazed window with fitted shutters, shelved cupboard and Kahrs engineered Artisan Maple flooring.
FAMILY BATHROOM
With shower cubicle, w.c. and hand basin with drawers and cupboards under. Ladder style heated towel rail, double glazed window, extractor fan and part tiled walls and tiled flooring.
OUTSIDE
GARAGE
With electric up and over door, light, power and door to the back garden. There is an outside store with light and power with external door.
There is parking for two cars in front of the garage, the kerb has been lowered to allow the parking area to be extended if required.
THE GARDEN
There is access either side of the house to the back garden, to the front and right of the house is a large area with perimeter hedges, lawns, trees and shrubs. The back garden is mainly lawn with a patio.
SERVICES
Mains gas, water, electricity and drainage are connect to the property.
COUNCIL TAX
The area is administered by Tandridge District Council and the property is in council tax band ''G''
NOTE
Ridlands Grove is a private drive maintained by the residents, there is an annual charge of circa £200.
DIRECTIONS
Leave Oxted on the A25 towards Westerham and Sevenoaks, continue straight on at the Limpsfield traffic lights and filter into the right lane. At the brow of the hill turn right on to the B269 Kent Hatch Road signposted to Crockham Hill and Edenbridge.
You will see the golf course on both sides of the road, after passing the golf course take the next road to the left into Ridlands Lane. Ridlands Grove will be found on the left.
Viewing
Please contact us on 01959 563265 if you wish to arrange a viewing appointment for this property, or require further information.
Energy Performance Certificate
Click here to view the Energy Efficiency Rating and Environmental Impact Rating for this property.
Disclaimer
Ibbett Mosely endeavour to maintain accurate depictions of properties in Virtual Tours, Floor Plans and descriptions, however, these are intended only as a guide and purchasers must satisfy themselves by personal inspection.
Features
- Four Bedrooms
- Two Bathrooms (One En-Suite)
- Living Room * Dining Room * Study
- Conservatory
- Kitchen
- Cloakroom
- Gas Central Heating with Period Style Radiators
- Double Glazing
- Double Garage and Parking
- Private Garden
Share

