Details
Long Mill Lane, Platt, Sevenoaks
£475,000
(Sold Subject To Contract)
Description
A charming semi-detached cottage in the SOUGHT AFTER VILLAGE of St Mary's Platt offering 2 BEDROOMS and a large OPEN-PLAN living space downstairs. There is SCOPE for further extension. Driveway and Car Port plus a lovely SOUTH-WEST garden backing onto Stonehouse Field.
Description
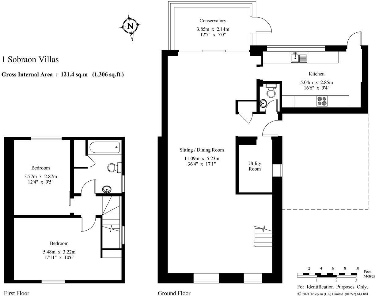
Nestled in the picturesque village of St Mary's Platt, this charming extended semi-detached cottage on Long Mill Lane offers a delightful blend of character and modern living. Built in 1845, this property boasts a generous 1,306 square feet of living space, making it an ideal home for those seeking a tranquil retreat in the heart of the Kent Downs, an Area of Outstanding Natural Beauty.
Upon entering the hall provides access to the downstairs cloakroom/wc and the utility room. From here you step into the spacious open plan living area that is perfect for both relaxation and entertaining, with clearly defined sitting and dining areas. There is plenty of natural light, creating a warm and inviting atmosphere. In addition there is a conservatory opening to the garden and a kitchen. The cottage features two well-proportioned bedrooms, providing comfortable accommodation for residents and guests alike. The bathroom is conveniently located upstairs, ensuring practicality for everyday living.
One of the standout features of this property is the lovely south-west facing garden, which backs onto the Stonehouse Fields recreation grounds. This outdoor space is perfect for enjoying sunny afternoons or hosting gatherings with family and friends. Additionally, the property includes parking for up to three vehicles, a valuable asset in this desirable location.
With ample scope for further extension, subject to planning permission, this home presents an exciting opportunity for those looking to personalise their living space. The surrounding area offers a popular village atmosphere while still being within easy reach of local amenities and transport links.
In summary, this semi-detached cottage is a rare find in a sought-after location, combining historical charm with modern conveniences. It is a perfect choice for anyone looking to embrace the beauty of Kent living.
Location
The property is located in the village of Platt just a a mile from Borough Green High Street and Station with a good selection of day to day shops and amenities. Train services run to London Victoria and Charing Cross from approx. 45 minutes as well as London bridge in about 37 minutes. Comprehensive shopping and further transport links are available nearby in Sevenoaks (7 miles with its mainline station to Cannon Street and Charing Cross/London Bridge from 22 minutes).
The area provides a wide range of excellent schools from primary schools in St. Marys Platt and Borough Green to the Grammar and private preparatory and secondary schools in Sevenoaks, Tonbridge and Maidstone (including Sevenoaks School, Tonbridge School, The Judd School, The New Beacon, Sevenoaks Prep, St. Michaels Prep School and Walthamstow Hall). There is a wide range of leisure facilities and sports clubs within a close proximity including Reynolds Health Club in Borough Green and David Lloyd in West Malling as well as golf at Wrotham Heath, Knole Park and Wildernesse in Sevenoaks. Nearby access to the M26/M20 provides great links to the M25 and the airports at Gatwick and Heathrow together with London and the wider UK motorway network and coast.
Viewing
Please contact us on 01732 351323 if you wish to arrange a viewing appointment for this property, or require further information.
Energy Performance Certificate
Click here to view the Energy Efficiency Rating and Environmental Impact Rating for this property.
Disclaimer
Ibbett Mosely endeavour to maintain accurate depictions of properties in Virtual Tours, Floor Plans and descriptions, however, these are intended only as a guide and purchasers must satisfy themselves by personal inspection.
A charming semi-detached cottage in the SOUGHT AFTER VILLAGE of St Mary's Platt offering 2 BEDROOMS and a large OPEN-PLAN living space downstairs. There is SCOPE for further extension. Driveway and Car Port plus a lovely SOUTH-WEST garden backing onto Stonehouse Field.
Description
Nestled in the picturesque village of St Mary's Platt, this charming extended semi-detached cottage on Long Mill Lane offers a delightful blend of character and modern living. Built in 1845, this property boasts a generous 1,306 square feet of living space, making it an ideal home for those seeking a tranquil retreat in the heart of the Kent Downs, an Area of Outstanding Natural Beauty.
Upon entering the hall provides access to the downstairs cloakroom/wc and the utility room. From here you step into the spacious open plan living area that is perfect for both relaxation and entertaining, with clearly defined sitting and dining areas. There is plenty of natural light, creating a warm and inviting atmosphere. In addition there is a conservatory opening to the garden and a kitchen. The cottage features two well-proportioned bedrooms, providing comfortable accommodation for residents and guests alike. The bathroom is conveniently located upstairs, ensuring practicality for everyday living.
One of the standout features of this property is the lovely south-west facing garden, which backs onto the Stonehouse Fields recreation grounds. This outdoor space is perfect for enjoying sunny afternoons or hosting gatherings with family and friends. Additionally, the property includes parking for up to three vehicles, a valuable asset in this desirable location.
With ample scope for further extension, subject to planning permission, this home presents an exciting opportunity for those looking to personalise their living space. The surrounding area offers a popular village atmosphere while still being within easy reach of local amenities and transport links.
In summary, this semi-detached cottage is a rare find in a sought-after location, combining historical charm with modern conveniences. It is a perfect choice for anyone looking to embrace the beauty of Kent living.
Location
The property is located in the village of Platt just a a mile from Borough Green High Street and Station with a good selection of day to day shops and amenities. Train services run to London Victoria and Charing Cross from approx. 45 minutes as well as London bridge in about 37 minutes. Comprehensive shopping and further transport links are available nearby in Sevenoaks (7 miles with its mainline station to Cannon Street and Charing Cross/London Bridge from 22 minutes).
The area provides a wide range of excellent schools from primary schools in St. Marys Platt and Borough Green to the Grammar and private preparatory and secondary schools in Sevenoaks, Tonbridge and Maidstone (including Sevenoaks School, Tonbridge School, The Judd School, The New Beacon, Sevenoaks Prep, St. Michaels Prep School and Walthamstow Hall). There is a wide range of leisure facilities and sports clubs within a close proximity including Reynolds Health Club in Borough Green and David Lloyd in West Malling as well as golf at Wrotham Heath, Knole Park and Wildernesse in Sevenoaks. Nearby access to the M26/M20 provides great links to the M25 and the airports at Gatwick and Heathrow together with London and the wider UK motorway network and coast.
Viewing
Please contact us on 01732 351323 if you wish to arrange a viewing appointment for this property, or require further information.
Energy Performance Certificate
Click here to view the Energy Efficiency Rating and Environmental Impact Rating for this property.
Disclaimer
Ibbett Mosely endeavour to maintain accurate depictions of properties in Virtual Tours, Floor Plans and descriptions, however, these are intended only as a guide and purchasers must satisfy themselves by personal inspection.
Features
- Charming 2 Bedroom semi-detached cottage
- Located in St Mary's Platt
- Nestled in Kent Downs AONB
- Large open-plan living space
- Pretty south-west facing garden
- Backs onto recreation grounds
- Driveway with ample parking
- Scope for further extension
- Built in 1845, historic charm
- Council Tax Band D; EPC rating D
Share
Request aValuation
Find out how much your home is worth with a free valuation.

